
Sold
4052 Silver Lane, West End, NC 27376
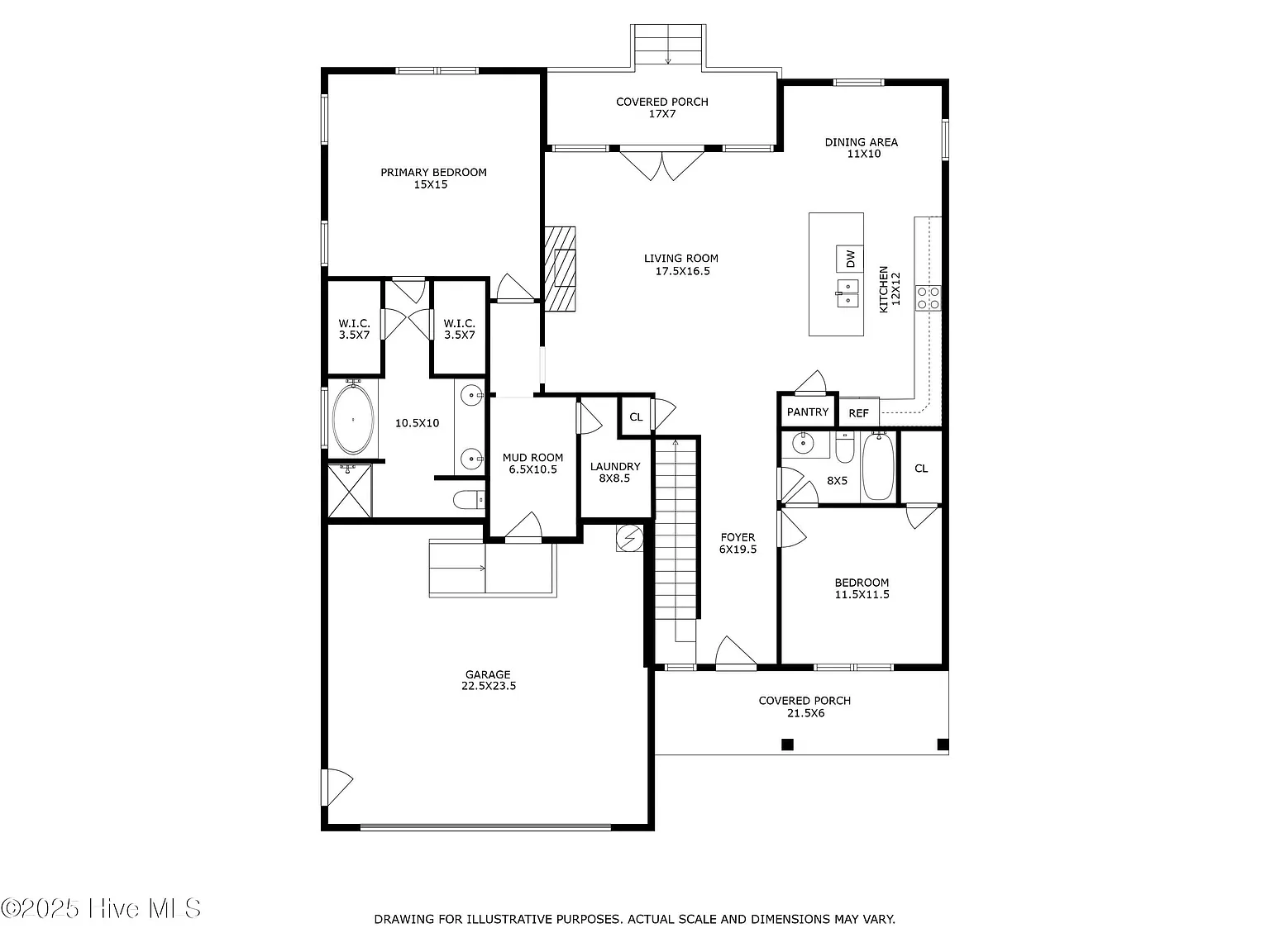
OUTSTANDING OPPORTUNITY! ‘Nearly new’ in the gated community of Gretchen Pines. This 2300-square-foot home was built by Superior Homes of the Sandhills in 2023. Priced BELOW tax value. TWO BEDROOMS and TWO FULL BATHROOMS ON THE FIRST FLOOR! Seller upgrades include a fully fenced backyard, IRRIGATION SYSTEM, and custom blinds—transferable termite bond through Canadys. Natural light pours into the open-concept living area. Upstairs, you will find two additional bedrooms and a loft space. Zoned for West Pine Elementary School, West Pine Middle, and Pinecrest High. Gretchen Pines is a short ride to First Health Moore Regional, the Village of Pinehurst, and roughly 1 hour to Fort Bragg. This is a SHORT SALE that the lender has conditionally approved. All offers will be reviewed by the lender, and the lender needs up to 30 days to issue acceptance. The sale is ‘AS-IS’. The seller has taken good care of their property, as you will see upon viewing. REFRIGERATOR, WASHER, AND DRYER CONVEY, as well as the chairlift on the stairs, and various other furniture/furnishings, are available should the buyer desire. All items will blue tape ARE NOT available.
- Price: $390,000
- Bedrooms: 4
- Bathrooms: 3
- SqFt: 2,322
- City: West End
- Type: Single Family
- Price/SqFt: $168
- Subdivision: Gretchen Pines
- Status: Sold
- Year Built: 2023
Listing Video
Photo Gallery
Get In Touch With Us














































You must be logged in to post a comment.