Sold
315 Longleaf Drive, West End, NC 27376
Welcome home to this beautifully designed, move-in-ready new home by J Cheek, Moore County’s premier builder. This is it – the location, layout, and quality you have been searching for. Within the gates of the amenity-rich ‘lake life’ community of Seven Lakes West, and placed on a large private lot. This home is just a 2-minute walk from Lake Auman, the crystal clear 800-acre body of water available only to Seven Lakes West property owners. From oversized pantry to the floor-to-ceiling soft-close cabinetry – the kitchen is incredible. The functionality of a large main-level master suite with an entrance to the well-appointed laundry room makes life easier, and the additional two bedrooms on the main level are placed on the other side of the home for added privacy. An en-suite 4th bedroom over the garage is ideal for visitors, or older children who prefer their own space. As you enter from the large 2-car attached garage, you will find a built-in bench and cubbies for an organized life. The screened porch overlooks the tranquil backyard. White oak engineered hardwood floors throughout the home lend to the airy feel, along with high ceilings and plenty of natural light. Pella windows, Delta plumbing fixtures, Hardie plank siding, Whirlpool appliances, Rinnai tankless water heater, crawlspace construction, a built-in 36” gas cooktop, pot filler, 8′ Amarr garage door, cedar wrapped beams, tile backsplash, and fantastic light fixtures are just a few of the features that make J Cheek’s homes the choice for those in search of quality new construction. The gated community of Seven Lakes West does not just offer exclusive access to Lake Auman, one of only three lakes in Moore County where power boating is permitted – it offers an outdoor pool, 2 tennis hard courts, 4 pickleball courts, a nature trail, playground, basketball court, and picnic gazebo.
- Price: $780,000
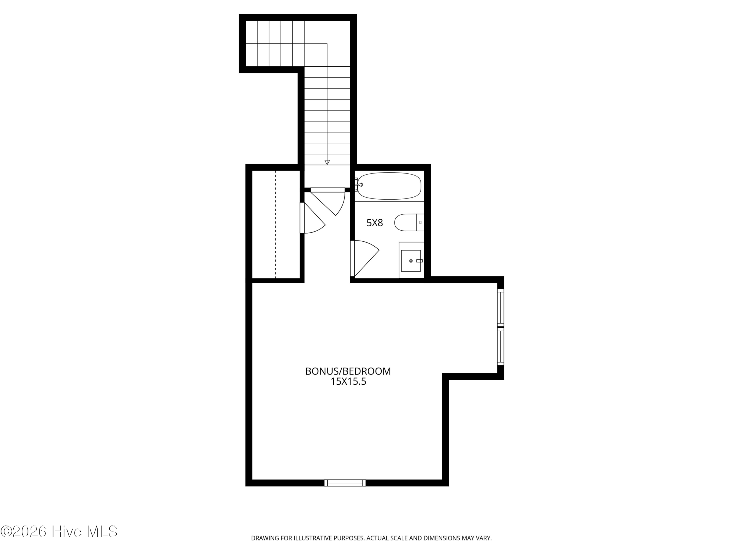
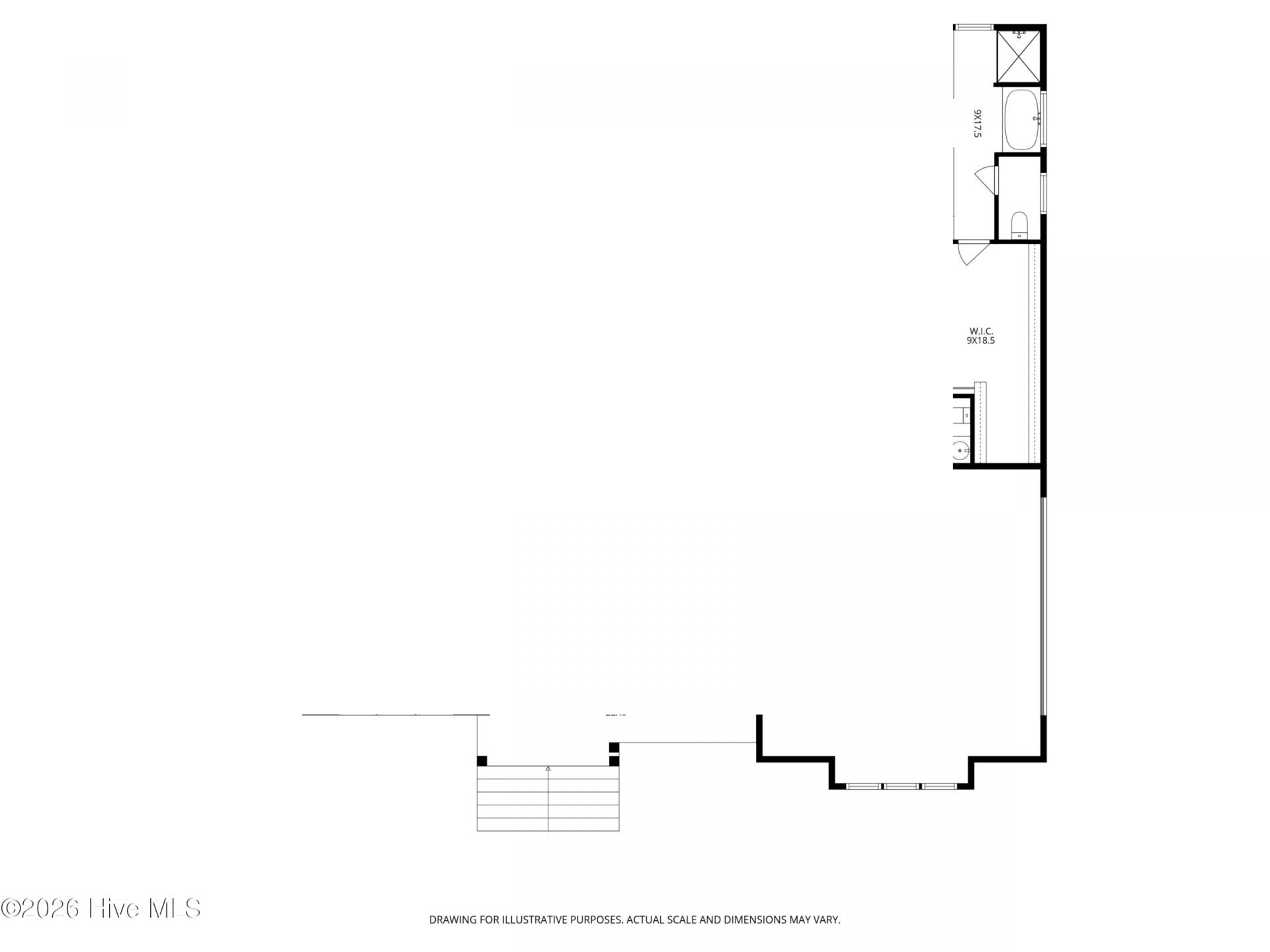
- Beds: 4
- Baths: 4
- Sqft: 2,848
- Year Built: 2025
- Price/SqFt 273.88
- Type: Single Family
- Region: West End
- County: Moore
- Status: Sold
Photo Gallery
Listing Video
Matterport Style 3D Tour
Get In Touch With Us




























































You must be logged in to post a comment.